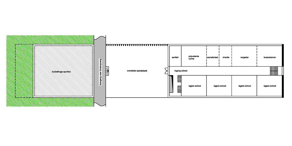
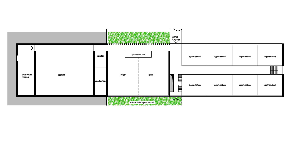
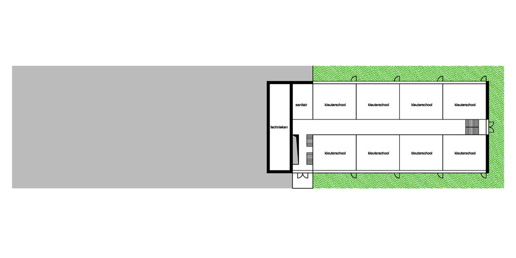
Nieuwbouw basisschool te Wetteren,
In samenwerking met Tom Mahieu, architect wordt een nieuwe duurzame basisschool gebouwd.
Onderdeel van het masterplan waarbij haaks op geklasseerde gebouwen een nieuwe lagere en kleuterschool komt.
Het gebouw is ingeplant in zijn omgeving die sterk hellend afloopt naar de Schelde.
